Halmes 2_Neugestaltung einer Bäckerei
Malmedy, BelgienProjektbeschreibung
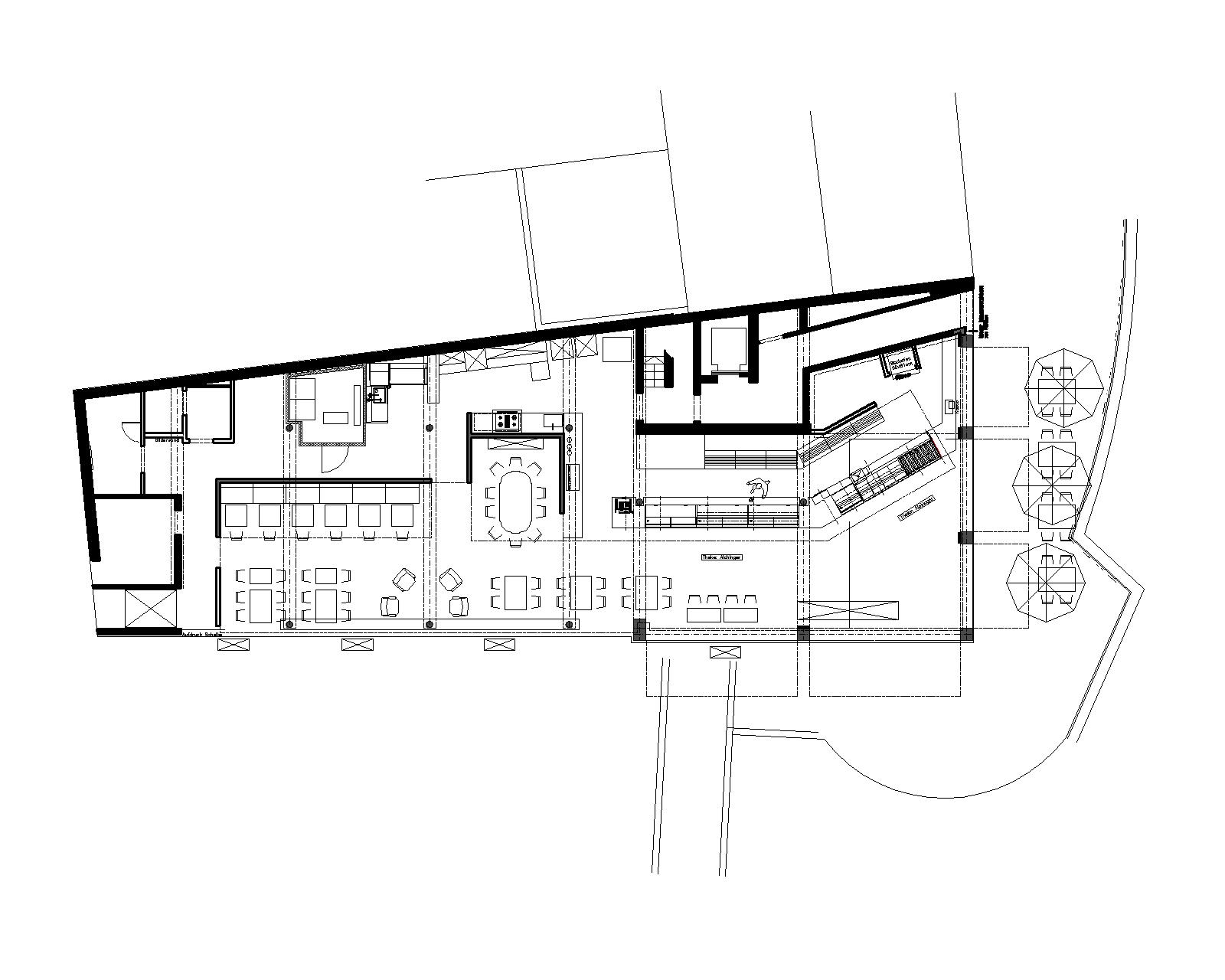
Funktionale Transparenz: Der architektonische Entwurf für die Neugestaltung der Bäckerei folgt den historisch gewachsenen Strukturen einer traditionellen Backstube, diese in ein zeitgemäßes, funktionales Gesamtkonzept zu überführen. Das räumliche Programm vereint Produktion, Verkauf und Gastronomie in einer fließenden Einheit.
Zentrales Element der Planung ist die Aufhebung der baulichen Trennung zwischen Handwerk und Gastraum. Durch die Integration einer großzügigen Verkaufstheke und Backstube werden die handwerklichen Produktionsabläufe für den Kunden unmittelbar erfahrbar, und schaffen so eine räumliche Tiefe, die den gesamten Verkaufsbereich prägt.
Der angeschlossene Café-Bereich wurde als Erweiterung des funktionalen Raumgefüges konzipiert. Große Fensterfronten lösen die Grenze zwischen Innen- und Außenraum auf und unterstreichen die Offenheit und Geselligkeit.
Projektbeteiligte
01

02

03
